资讯中心

当前位置:首页>资讯中心

美国奥古斯塔酒庄:木结构中令人难忘的精彩体验

发布时间:2022/04/22

蓝裕文化酒庄设计院曾多次介绍,美国酒庄主打的是自有营销渠道,酒庄旅游成为他们产品销售的主要途径。这在纳帕谷尤为显著,今天我们要为大家带来的就是纳帕谷一栋木结构酒庄的精彩。

美国奥古斯塔酒庄:木结构中令人难忘的精彩体验


美国奥古斯塔酒庄:木结构中令人难忘的精彩体验


美国奥古斯塔酒庄:木结构中令人难忘的精彩体验


奥古斯塔(Augusta Vin)酒庄业主最初想要一个种植园式的建筑,一层和二层由门廊围绕,作为品酒室。设计师碰巧有一个概念结构设计,灵感来自业主喜欢的旧时代传统木材结构,称为曲木框架,其显著特点是使用拱形木材来支撑椽子,并实现简洁的单跨空间,这是旧时代最卓越和最直接的造船材料的副产品。

美国奥古斯塔酒庄:木结构中令人难忘的精彩体验


建筑需要大型两层门廊,面朝前面70英亩(约2832公亩)葡萄园,同时需要50英尺(约15.2米)的室内净空跨度以实现座椅,酒吧和手工艺品贩卖的开放式计划。Texas Timber Frames能以现代化手法对曲木框架进行调整适应并扩大规模,可通过使用胶合木拱形结构代替自然形态的树木作为主要支撑结构。在实现了结构概念所创造的巨大体量后,引入了中央走道,连接阳台,增加座位,并在天窗和自然采光的引领下来到结构中央。

美国奥古斯塔酒庄:木结构中令人难忘的精彩体验


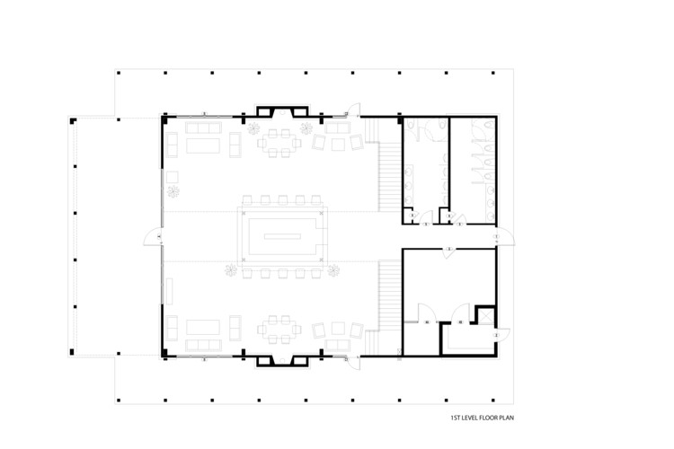
平面图

美国奥古斯塔酒庄:木结构中令人难忘的精彩体验


剖面图


最大的挑战来自材料采购。尽管我们在木框架的拱形构件上使用了胶合木,但业主希望该项目尽可能多地使用天然木材。由于规模巨大,其中一些材料庞大,接近12米高和40厘米厚的木材,像这样的横梁不易获得,而该项目需要12根。由于这一困境,我们在木桩内采用了一些特殊的隐蔽小木作,来支撑悬臂。

美国奥古斯塔酒庄:木结构中令人难忘的精彩体验


建筑主要结构是花旗松木胶合木和天然木梁,采用传统的榫卯木工、结构橡木栓和T&G盖板。框架仅采用少量钢节点达到长跨度,十分令人惊讶,是一个真正的展示现代木结构的建筑。Texas Timber Frame加工车间中的Hundegger的k2机器使这个庞大的木结构得以实现,并且生产过程更为顺畅。Hundegger数控机床将小木作预先切割成梁,同时需要手工雕凿以增加装饰效果,此过程通过创建易于组装的“林肯原木成品”套件使现场安装更加高效。

美国奥古斯塔酒庄:木结构中令人难忘的精彩体验


美国奥古斯塔酒庄:木结构中令人难忘的精彩体验


该项目由一个6米深的入口门廊和阳台组成,可以俯瞰德克萨斯州Fredericksburg的Augusta Vin葡萄园。内部为15.2米×15.2米的开放空间,设有服务区、座位区、展示区,其木结构框架也裸露展示。主要的品酒酒吧位于15.2米×15.2米空间的中央走道下方,并以交叉木材形成的“华夫板”为特色。内部空间后部6米的结构用于服务、设备和储藏,其楼上延伸部分可俯瞰建筑后侧的Nasse Creek溪流美景。

美国奥古斯塔酒庄:木结构中令人难忘的精彩体验


项目完工照片

美国奥古斯塔酒庄:木结构中令人难忘的精彩体验


美国奥古斯塔酒庄:木结构中令人难忘的精彩体验


美国奥古斯塔酒庄:木结构中令人难忘的精彩体验


美国奥古斯塔酒庄:木结构中令人难忘的精彩体验


美国奥古斯塔酒庄:木结构中令人难忘的精彩体验


美国奥古斯塔酒庄:木结构中令人难忘的精彩体验


美国奥古斯塔酒庄:木结构中令人难忘的精彩体验


美国奥古斯塔酒庄:木结构中令人难忘的精彩体验


美国奥古斯塔酒庄:木结构中令人难忘的精彩体验


酒庄的核心是做好产品,而酒庄营销的关键是让人能一眼定情,产生一探究竟的冲动,二看入戏,对酒庄提供的体验感到满意,三看成迷,成为酒庄的忠诚客户,帮助酒庄进行宣传。蓝裕文化酒庄设计院一直致力于打造富有特色的酒庄建筑,带来极具沉浸感的葡萄酒体验,开发让人喜爱的葡萄酒衍生品。我们希望越来越多的酒庄成为米其林那样,不远往里也要安排一次专门的旅程前往体验,这是所有酒庄都该有的目标。

本站底部导航: 关于我们 工业旅游新闻 酒庄设计新闻 主题乐园新闻 工业旅游设计案例 酒庄设计案例 主题乐园设计案例 联系我们 网站地图

Blueyu CultureBlueyu CultureBlueyu CultureBlueyu CultureBlueyu CultureBlueyu Culture 友情链接: 京ICP备16050824号 工业旅游、白酒酒庄、主题乐园 ©2016-2023 蓝裕文化版权所有