资讯中心

当前位置:首页>资讯中心

十个蜕变案例,发现老厂房的无限可能

发布时间:2022/01/13

城市更新如火如荼,老厂房成为这一趋势的重要部分。蓝裕文化工业旅游设计院今天就为大家带来10个最新的老厂房改造案例,让我们一起发现老厂区的无限可能。

十个蜕变案例,发现老厂房的无限可能


1

马尾船政书局


船政书局,位于福州市马尾区船政文化广场内,原建筑为当地船厂的仓库。作为该区域文化精神的聚合点,它汇集了船政文化的宣传、教育以及学术研究等多种功能。

十个蜕变案例,发现老厂房的无限可能


它的设计,以“造船”回顾历史,以“营书”望向未来——它通过抽象而现代的语言,在室内构建起船舶;同时也以图书馆式的服务与体验,探索文化传播的新模式。

十个蜕变案例,发现老厂房的无限可能


更新改造后的书局,由原来的一层空间变为了带夹层的两层空间,通过方舟船首的巨大台阶相连。首层作为阅读与展示的区域,以书为主,似是文化浪潮,引人进入知识的海洋。二层则作为休闲与活动的区域,被设计为甲板,邀人登上船首,继而可以在一个开放性的空间中停留与思考。

十个蜕变案例,发现老厂房的无限可能


十个蜕变案例,发现老厂房的无限可能


方舟中部的中庭,是整个书局的核心。设计以船舱为喻,将它营造为了一处让人沉浸其中的精神空间。

十个蜕变案例,发现老厂房的无限可能


中庭之下,可移动的书架提供了灵活的空间布局,构建出了一个满足阅读、展示等多种使用场景的复合型图书室。

十个蜕变案例,发现老厂房的无限可能


十个蜕变案例,发现老厂房的无限可能


方舟的船尾还呈现出了另一种形态的舱室。这个圆形的阅览区,呼应着船舶中较为封闭的船室,因而被设计为了书局中更加安静与独立的一处阅读空间。

十个蜕变案例,发现老厂房的无限可能


十个蜕变案例,发现老厂房的无限可能


2

济南金科博翠明湖纺织文化艺术馆


前身为成通纱厂的“国营济南第四棉纺厂”,是老济南口中亲切熟悉的“国棉四厂”。如今,国棉四厂旧址将要迎来大规模的改造,幸运的是,由金科集团的倾力打造的济南博翠明湖纺织文化艺术馆 ,最大限度的保留了济南这份珍贵的历史记忆和工业遗产。

十个蜕变案例,发现老厂房的无限可能


十个蜕变案例,发现老厂房的无限可能


通过展示出在纺、织、染各个领域发展的历史文脉以及有关国棉四厂的历史文献,让人们可以感受到历史的厚重和温情,脉络清晰地了解并走进那段辉煌的纺织岁月。

十个蜕变案例,发现老厂房的无限可能


十个蜕变案例,发现老厂房的无限可能


展厅中心位置上方由1500个织布梭子悬吊组合成独特的艺术装置作品,成为艺术展厅最亮眼的视觉中心点。两侧的墙面则被打造成极具视觉冲击力的纺织物料以及多种纺织布品的矩阵展示光墙,与中心位置的多媒体触摸屏形成叙事性的巧妙互动。

十个蜕变案例,发现老厂房的无限可能


十个蜕变案例,发现老厂房的无限可能


十个蜕变案例,发现老厂房的无限可能


十个蜕变案例,发现老厂房的无限可能


十个蜕变案例,发现老厂房的无限可能


十个蜕变案例,发现老厂房的无限可能


十个蜕变案例,发现老厂房的无限可能


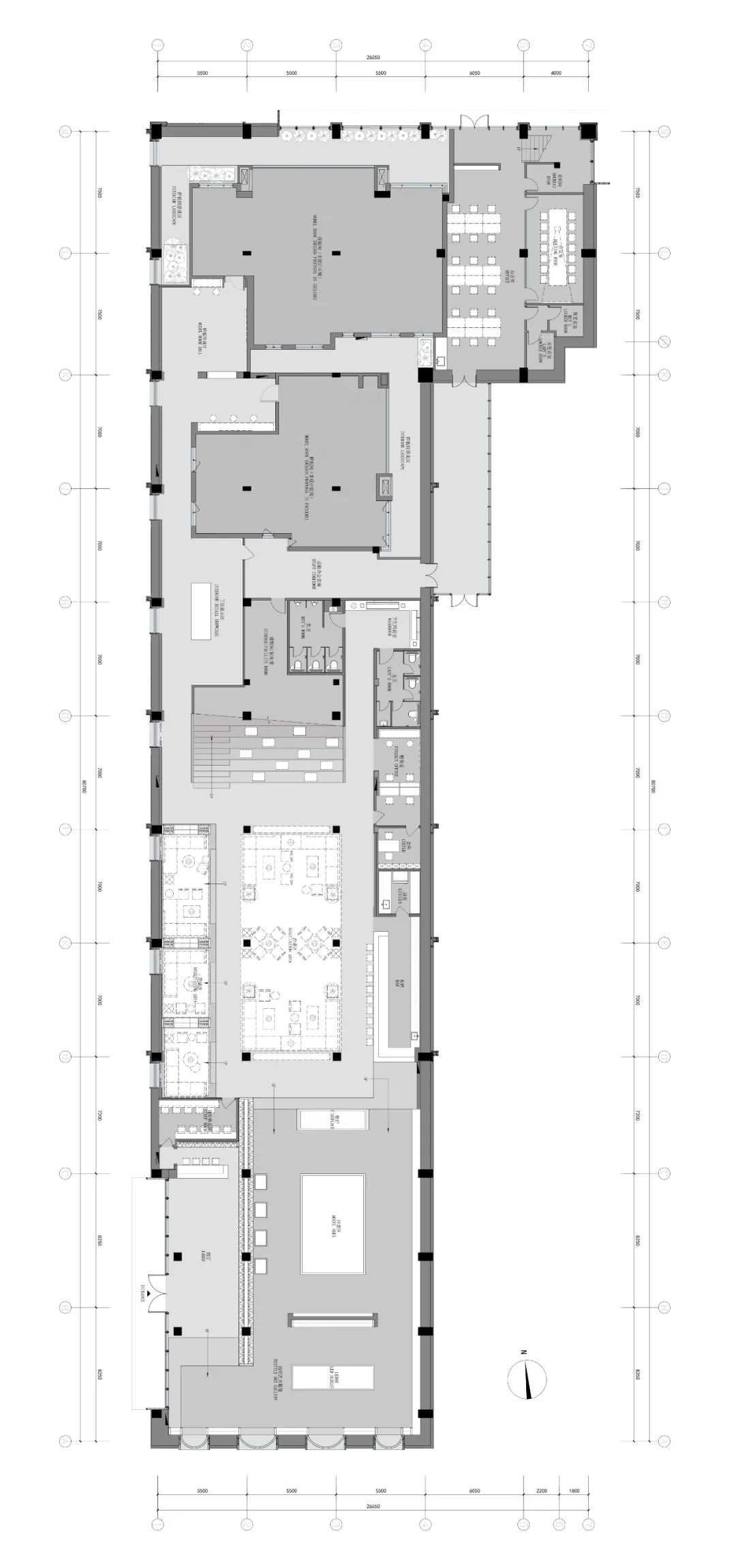
▼一层平面图

十个蜕变案例,发现老厂房的无限可能


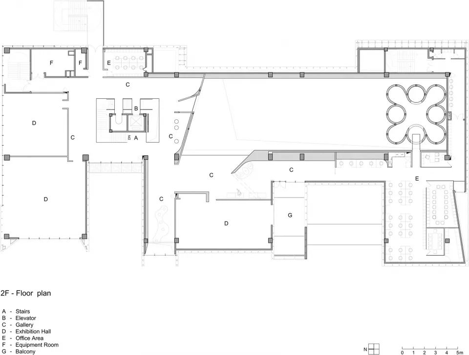
▼二层平面图

十个蜕变案例,发现老厂房的无限可能


3

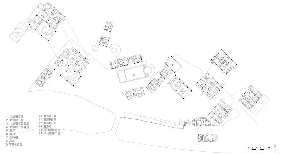
成都1979厂房改造精品酒店


项目位于成都市大邑县雾山乡的深山中,是改革开放初期三线建设遗留的厂房。为满足业主方诉求,我们将其改造为一座精品酒店。改造后的酒店有21间客房,建筑面积3000平方米,包括全日餐厅、咖啡厅、酒吧、多功能厅、会议室、棋牌室、露天温泉、景观泳池等配套娱乐设施。

十个蜕变案例,发现老厂房的无限可能


十个蜕变案例,发现老厂房的无限可能


特色大堂吧所在的旧空间为始建于1970年的原中国科学院光电技术研究所装配车间,为了体现原有空间特有的时代背景和文化属性,我们尽可能地保留了原厂房的建筑形态和气质,将原有的工业风格与现代元素完美融合。

十个蜕变案例,发现老厂房的无限可能


餐厅的整体设计具有强劲的视觉冲击感,其设计灵感源于旧厂房中的机械齿轮。


▼餐厅生成分析

十个蜕变案例,发现老厂房的无限可能


十个蜕变案例,发现老厂房的无限可能


十个蜕变案例,发现老厂房的无限可能


酒吧是由旧发电车间改造而成,兼顾了咖啡、棋牌室等多重功能。同时该空间也是酒店的“博物馆”,陈列展示着旧厂址的遗存机器,身处其中,访客可以近身感受那段鲜为人知中国“三线建设”历史,了解它的变迁历程。

十个蜕变案例,发现老厂房的无限可能


十个蜕变案例,发现老厂房的无限可能


山景客房是由原工厂的餐厅空间改造设计,建筑外立面设置了大面积的玻璃幕墙,与临近的客房区形成疏密与虚实的双重对比。

十个蜕变案例,发现老厂房的无限可能


十个蜕变案例,发现老厂房的无限可能


十个蜕变案例,发现老厂房的无限可能


▼总平面图

十个蜕变案例,发现老厂房的无限可能


▼首层平面图

十个蜕变案例,发现老厂房的无限可能


4

时仓酒店


一个“藏”在普通村子里的农用仓库,废旧已久,局部的屋顶已经破楼,但场地的界限还是非常明确的。站在厂房的门洞前,望着山上阳光照射呈现金色的河防口长城,“时仓”就“诞生”了。

十个蜕变案例,发现老厂房的无限可能


十个蜕变案例,发现老厂房的无限可能


十个蜕变案例,发现老厂房的无限可能


仓库特殊的空间形态和尺度是时仓最有特点的部分之一,通过抬高举架强化空间特点的同时,让原本的空间更舒适,获得能够满足住宿的光照,躺在阁楼的床上直接就能望到对面山上的长城是多么浪漫的一件事情。

十个蜕变案例,发现老厂房的无限可能


十个蜕变案例,发现老厂房的无限可能


十个蜕变案例,发现老厂房的无限可能


十个蜕变案例,发现老厂房的无限可能


十个蜕变案例,发现老厂房的无限可能


十个蜕变案例,发现老厂房的无限可能


十个蜕变案例,发现老厂房的无限可能


▼首层平面图

十个蜕变案例,发现老厂房的无限可能


▼二层平面图

十个蜕变案例,发现老厂房的无限可能


▼屋顶平面图

十个蜕变案例,发现老厂房的无限可能


5

中山华侨城欢乐海岸格子空间


这是一个改造项目,旧房子位于广东省中山市石岐区港口河岸边,它恰巧处在大型文旅项目“欢乐海岸”用地的中心位置。建筑通过“减量”的改造仍可以加以利用、重获新生,以更合适的体量与未来的大环境相融合,减轻对道路与河岸的压迫,还会成为沿河步行景观带上的一个富有活力的节点。

十个蜕变案例,发现老厂房的无限可能


十个蜕变案例,发现老厂房的无限可能


▼旧厂房改造前

十个蜕变案例,发现老厂房的无限可能


十个蜕变案例,发现老厂房的无限可能


十个蜕变案例,发现老厂房的无限可能


十个蜕变案例,发现老厂房的无限可能


十个蜕变案例,发现老厂房的无限可能


十个蜕变案例,发现老厂房的无限可能


十个蜕变案例,发现老厂房的无限可能


十个蜕变案例,发现老厂房的无限可能


▼建筑原始结构

十个蜕变案例,发现老厂房的无限可能


▼“减量”拆除示意

十个蜕变案例,发现老厂房的无限可能


▼改造分解

十个蜕变案例,发现老厂房的无限可能


6

Moments摄影基地


项目位于杭州市滨江区,前身为杭州双鱼不锈钢厂,或许不似文物那么“古”,却也有那个年代的映射。“消解,重塑,共生。”我们以此界定项目的逻辑。不完全推翻,不照旧保留,在曾经的基础上,融入当下文化方式和需求。整个厂区历时四个月设计周期后,以另一种全新的方式延续了生命。于是,『Moments』诞生了。

十个蜕变案例,发现老厂房的无限可能


十个蜕变案例,发现老厂房的无限可能


十个蜕变案例,发现老厂房的无限可能


为了体现时间在空间内的流动感,在维持整个厂区建筑统一性的同时,又确保各个造景在拍摄时的独一性,我们将厂房宿舍划分为两栋独立区域,分别设计了咖啡厅,酒吧,买手店及展厅等多元化场景,满足模特对于氛围及状态多元化的要求。

十个蜕变案例,发现老厂房的无限可能


十个蜕变案例,发现老厂房的无限可能


十个蜕变案例,发现老厂房的无限可能


十个蜕变案例,发现老厂房的无限可能


柔和的曲线在空间内穿插组合,裸露的钢体结构与斑驳的墙面形成鲜明对比,构成了moments独特的品牌调性与空间秩序。这一方土地,记录着曾经的故事,当下,又有无数个瞬间在此发生。

十个蜕变案例,发现老厂房的无限可能


十个蜕变案例,发现老厂房的无限可能


十个蜕变案例,发现老厂房的无限可能


▼总平面图

十个蜕变案例,发现老厂房的无限可能


7

中关村数字经济创新产业基地


学清路站在中关村核心区及清华北大两公里半径范围内,这里作为互联网企业聚集地,工业时代遗留的老厂房悉数拆除更新,机电研究所是其中为数不多的幸存者之一。

十个蜕变案例,发现老厂房的无限可能


十个蜕变案例,发现老厂房的无限可能


十个蜕变案例,发现老厂房的无限可能


“我们希望每个办公区都像被花园所围合,让互联网企业人员在工作之余望向窗外,便即刻获片刻轻松,当然,也可以直接步入花园,享受阳光与自然的气息。”

十个蜕变案例,发现老厂房的无限可能


从入口进入后,能看到大面积被扩建改造的采光天窗,光从此进入引导行进的方向。采光天窗一直延伸至与中庭连为一体,中庭花园沐浴在自然光线中。

十个蜕变案例,发现老厂房的无限可能


十个蜕变案例,发现老厂房的无限可能


十个蜕变案例,发现老厂房的无限可能


十个蜕变案例,发现老厂房的无限可能


为最大限度地满足泊车需求,设计师将原有地面下挖到柱子的基础,作为半地下车库使用。下沉的中庭花园向外延伸至车库,带来不一样的停车感受。

十个蜕变案例,发现老厂房的无限可能


十个蜕变案例,发现老厂房的无限可能


▼轴测分析图

十个蜕变案例,发现老厂房的无限可能


▼剖面分析图

十个蜕变案例,发现老厂房的无限可能


8

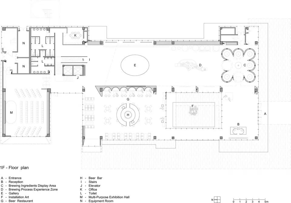
啤酒博物馆


湖北雪花啤酒厂运作数十年的任务,塔型厂房也成居民心中的城市地标。如今计划于原基地建构一座现代的啤酒博物馆,负责空间的水相设计希望昔日酿酒机械提炼为建筑语汇,营造别于传统博物馆的参访行为,并连结地景新旧意涵与共同记忆。

十个蜕变案例,发现老厂房的无限可能


十个蜕变案例,发现老厂房的无限可能


十个蜕变案例,发现老厂房的无限可能


十个蜕变案例,发现老厂房的无限可能


十个蜕变案例,发现老厂房的无限可能


十个蜕变案例,发现老厂房的无限可能


以啤酒试饮吧台为中心环绕的圆形餐厅,像一座集会交流的城市广场,模拟厂房管线的金属线条与圆弧灯管盘旋其上,映照着温暖敦厚的软木塞天花板,想像着佳酿的芬芳在悠长的时光里缓缓渗入隙孔,于不经意的嗅闻唤醒心底某时某刻。

十个蜕变案例,发现老厂房的无限可能


十个蜕变案例,发现老厂房的无限可能


十个蜕变案例,发现老厂房的无限可能


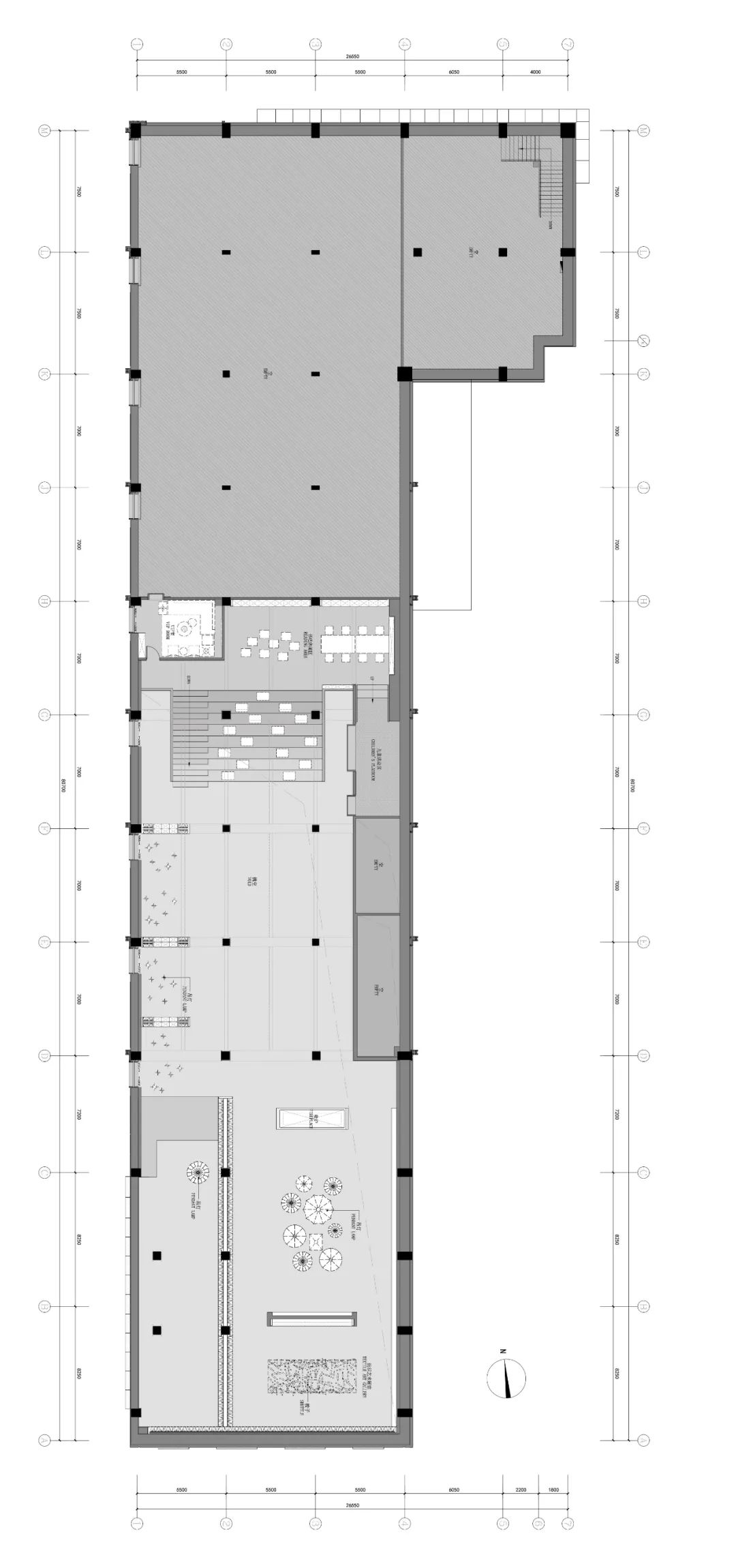
▼一层平面图

十个蜕变案例,发现老厂房的无限可能


▼二层平面图

十个蜕变案例,发现老厂房的无限可能


9

EvenBuyer买手店


本案所在的双流水泥厂位于西湖区转塘镇,四个巨大的圆筒结构一字排开构成建筑主体,内部互通相连。买手品牌EvenBuyer的全新店面在这里借建筑与设计的语言,讲述自身的风格标签与时尚态度。

十个蜕变案例,发现老厂房的无限可能


十个蜕变案例,发现老厂房的无限可能


十个蜕变案例,发现老厂房的无限可能


十个蜕变案例,发现老厂房的无限可能


十个蜕变案例,发现老厂房的无限可能


十个蜕变案例,发现老厂房的无限可能


十个蜕变案例,发现老厂房的无限可能


剔除粉刷面层后,建筑原有墙体呈现出原始毛坯状态,独特的肌理是时代的印迹。在此背景下,不锈钢及镜面材质注入强烈反差。

十个蜕变案例,发现老厂房的无限可能


▼平面图

十个蜕变案例,发现老厂房的无限可能


10

Masa摄影基地


Masa是现如今网络化所需的产物,满足摄影需要的一个多场景复合空间。保留原始双层厂房空间,同时具有复古咖啡厅、艺术画廊、香薰店、花店、法式生活馆、艺术装置区等多元化场景,空间充实又富于变化,保障了两层同时拍摄的独立性。

十个蜕变案例,发现老厂房的无限可能


十个蜕变案例,发现老厂房的无限可能


整个空间以白色为主,不同深浅层次的灰色为辅,局部暖木色地板为空间多了一些温暖与随性。

十个蜕变案例,发现老厂房的无限可能


十个蜕变案例,发现老厂房的无限可能


十个蜕变案例,发现老厂房的无限可能


十个蜕变案例,发现老厂房的无限可能


十个蜕变案例,发现老厂房的无限可能


▼一层平面图

十个蜕变案例,发现老厂房的无限可能


▼二层平面图

十个蜕变案例,发现老厂房的无限可能


本文改编自新微设计。


蓝裕文化工业旅游设计院认为,旧厂房是城市更新的重要组成部分,随着城市功能需求的不断迭代,旧厂房的大空间具备各种改造的可能性,游乐场、商业、办公、酒店、娱乐等,都能很好地融入其中。但难点是保留原有风味,融入上述功能。

本站底部导航: 关于我们 工业旅游新闻 酒庄设计新闻 主题乐园新闻 工业旅游设计案例 酒庄设计案例 主题乐园设计案例 联系我们 网站地图

Blueyu CultureBlueyu CultureBlueyu CultureBlueyu CultureBlueyu CultureBlueyu Culture 友情链接: 京ICP备16050824号 工业旅游、白酒酒庄、主题乐园 ©2016-2023 蓝裕文化版权所有